Skip to content

Apartament na sprzedaż, Lea 25

Numer oferty: 8152
Kraków , Krowodrza
ul. Lea, Juliusza
Cena:
1 202 530,00 PLN

Informacje szczegółowe

Rodzaj nieruchomości:
mieszkania na sprzedaż
Powierzchnia:
58,66 m2
Piętro:
2
Liczba pięter:
5
Rok budowy:
2025
Pokoje:
3
Typ:
apartamentowiec
Ogrzewanie:
miejskie
Ostatnia aktualizacja:
02.03.2026
Wyłączność:
Tak

Udogodnienia

Internet
Winda
Piwnica

Opis

BRAK PCC i PROWIZJI

Leach & Lang Property Consultants przedstawia luksusowe mieszkanie na sprzedaż w wyjątkowej inwestycji w sercu Krakowa.

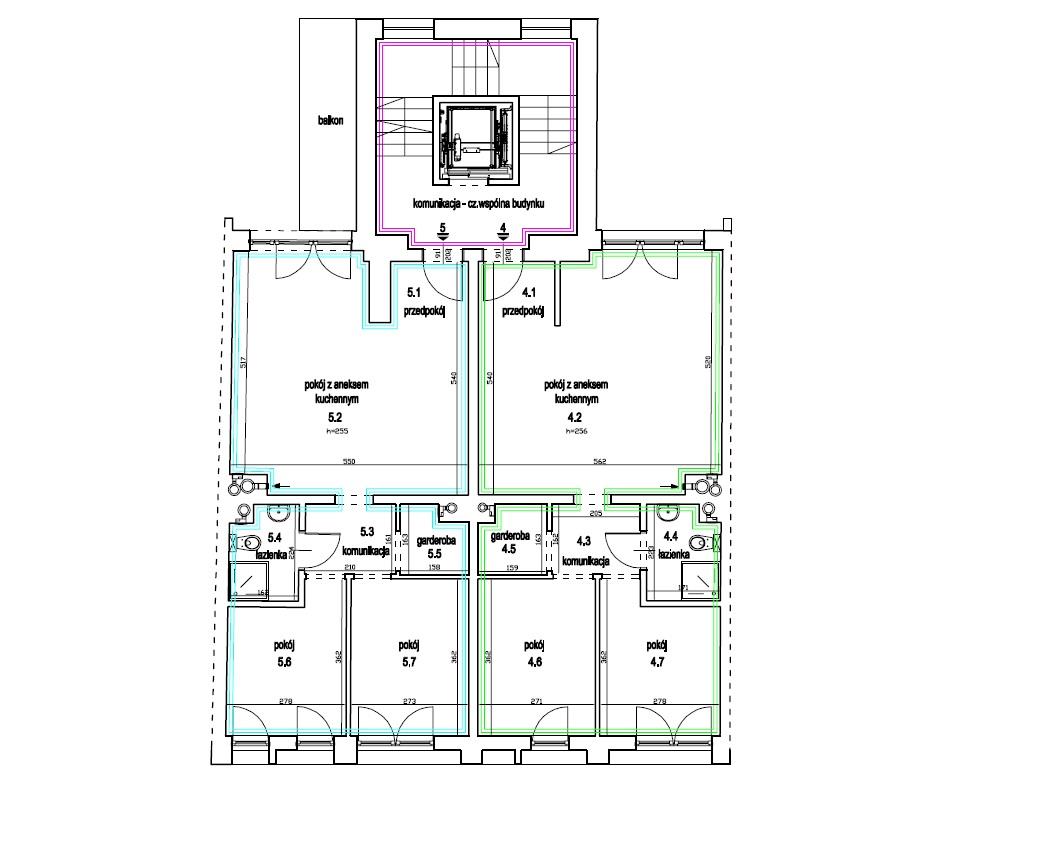
Oferujemy na sprzedaż mieszkanie o powierzchni 58,66 m2, w skład którego wchodzi:

- Przestronny salon z aneksem kuchennym
- Dwie jasne sypialnie
- Łazienka
- Garderoba
- Przedpokój

Do mieszkania przynależy duża piwnica 4,35 m2, która zapewnia dodatkowe miejsce do przechowywania.

Prezentowany apartment znajduje się na drugim piętrze zupełnie nowego, kameralnego budynku, wyposażonego w windę.

Bryła budynku stanowi wyjątkowe połączenie lokalnej architektury dzielnicy Krowodrza oraz nowoczesnego designu.
Zorientowany w kierunku południowym front budynku oraz duże przeszklenia zapewniają doskonałe oświetlenie pomieszczeń światłem dziennym.

Lokalizacja, która spełnia wszystkie potrzeby
Inwestycja przy ul. Lea 25 to doskonałe miejsce do życia lub wynajmu położona w samym sercu jednej z najbardziej tętniących życiem dzielnic Krakowa, w otoczeniu uczelni, kawiarni i parków.
Więcej informacji lea25_pl

Zainteresowanych zapraszamy do kontaktu z naszym biurem.

Niniejsze ogłoszenie jest wyłącznie informacją handlową i nie stanowi oferty w rozumieniu art. 66 Kodeksu Cywilnego.

Więcej podobnych ofert na stronie internetowej www.leachandlang.pl - zapraszamy!

Mapa

Skontaktuj się

* E-mail
* Telefon
Treść wiadomości
Wyrażam zgodę na przetwarzanie moich danych osobowych przez 1) Polo Group Thomas Leach (NIP: 6762284832), oraz 2) Leach and Management Katarzyna Balawejder sp.j. (NIP: 6762484502) z siedzibą przy ul. Garncarskiej 8/4, 31-115 Kraków, a także 3) Leach & Lang Beata Zalewska, ul. Giełdowa 4a/25, 01-211 Warszawa (NIP: 8231141526), wszystkie podmioty działające pod szyldem Leach & Lang Property Consultants w celu kontaktu w sprawie oferty.
Oświadczam, że zapoznałam/em się oraz akceptuję Politykę prywatności.
Wyrażam zgodę na otrzymywanie drogą elektroniczną informacji handlowych, w tym o treści marketingowej z obszaru obrotu nieruchomościami w rozumieniu ustawy z dnia 18 lipca 2002 r. o świadczeniu usług drogą elektroniczną

Dane kontaktowe

Vavada – najlepsze oferty i kody promocyjne dla nowych graczy!

Dodanie nieruchomości

Dane nieruchomości

Typy nieruchomości
Rodzaj oferty
Województwo
Powiat / miasto
Gmina / dzielnica
Ulica
Numer budynku
Numer lokalu
Liczba pokoi
Powierzchnia
Opis
Cena
Waluta

Dane kontaktowe

Nazwa firmy
* Imię
* Nazwisko
* E-mail
* Telefon
Wyrażam zgodę na przetwarzanie moich danych osobowych przez Polo Group Thomas Leach, ul. Garncarska 8/4, 31-115 Kraków, NIP: 6762284832 w celu kontaktu w sprawie oferty Leach & Lang Property Consultants.
Oświadczam, że zapoznałam/em się oraz akceptuję Politykę prywatności.
Wyrażam zgodę na otrzymywanie drogą elektroniczną informacji handlowych, w tym o treści marketingowej z obszaru obrotu nieruchomościami w rozumieniu ustawy z dnia 18 lipca 2002 r. o świadczeniu usług drogą elektroniczną