Skip to content

Gotowa powierzchnia biurowa w kameralnym budynku

Numer oferty: 7622
Kraków , Krowodrza
ul. Prądnicka
Cena:
16 955,00 PLN

Informacje szczegółowe

Rodzaj nieruchomości:
lokale na wynajem
Powierzchnia:
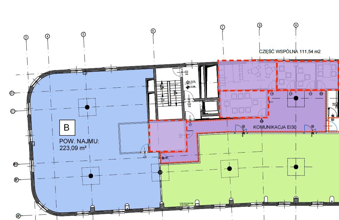
223,09 m2
Piętro:
3
Liczba pięter:
5
Rok budowy:
2016
Typ:
inny
Ogrzewanie:
miejskie
Ostatnia aktualizacja:
11.03.2025

Udogodnienia

Internet
Klimatyzacja
Winda

Opis

Leach & Lang oferuje na wynajem powierzchnię biurową w kameralnym budynku Regent Office w pobliżu Nowego Kleparza.

Lokal położony jest na 3. piętrze i składa się z dwóch stref open space  (łącznie 59 stanowisk pracy), sali konferencyjnej (na 8 osób), 3 sal spotkać (na 2-3 osoby), kuchni serwerowni oraz magazynu.

Szczegóły techniczne:

  • Doskonały dostęp do światła słonecznego
  •  Energooszczędny system oświetlenia
  •  Nowoczesny system klimatyzacji
  •   Elewacja budynku o wysokiej izolacyjności termicznej
  •   Bioróżnorodność zagospodarowania terenu zielony dach
  •   Wentylacja nawiewno-wywiewna z rekuperatorem  i nawilżaniem powietrza
  •   Wykładzina dywanowa w płytkach
  •   Techniczna  podłoga podniesiona
  •   Uchylne okna z blokadą bezpieczeństwa

Oryginalna architektura budynku: elewacja z ręcznie formowanej cegły i kamienia stanowi wizualne przedłużenie Parku Kleparskiego zaś sam projekt bryły budynku nawiązuje do fortów znajdujących się przy Nowym Kleparzu. W. Układ pomieszczeń i instalacji zaprojektowano mając na celu maksymalną funkcjonalność: najemca może dopasować przestrzeń biurową do potrzeb i charakteru swojej działalności. Niewątpliwe atuty budynku to elegancka recepcja i oryginalna strefa relaksu z zielonym tarasem, pergolą obrośniętą winoroślą oraz mini winnicą na dachu.
Bardzo dobra komunikacja z dworcem PKP i MPK i portem lotniczym w Balicach

Oferta dotyczy cesji praw/ podnajmu do 30.09.2026. Istnieje możliwość podpisania umowy na dłuższy okres najmu.

Niniejsze ogłoszenie jest wyłącznie informacją handlową i nie stanowi oferty w rozumieniu art. 66 Kodeksu Cywilnego.

Więcej podobnych ofert na stronie internetowej www.leachandlang.pl - zapraszamy!

Mapa

Skontaktuj się

* E-mail
* Telefon
Treść wiadomości
Wyrażam zgodę na przetwarzanie moich danych osobowych przez 1) Polo Group Thomas Leach (NIP: 6762284832), oraz 2) Leach and Management Katarzyna Balawejder sp.j. (NIP: 6762484502) z siedzibą przy ul. Garncarskiej 8/4, 31-115 Kraków, a także 3) Leach & Lang Beata Zalewska, ul. Giełdowa 4a/25, 01-211 Warszawa (NIP: 8231141526), wszystkie podmioty działające pod szyldem Leach & Lang Property Consultants w celu kontaktu w sprawie oferty.
Oświadczam, że zapoznałam/em się oraz akceptuję Politykę prywatności.
Wyrażam zgodę na otrzymywanie drogą elektroniczną informacji handlowych, w tym o treści marketingowej z obszaru obrotu nieruchomościami w rozumieniu ustawy z dnia 18 lipca 2002 r. o świadczeniu usług drogą elektroniczną

Dane kontaktowe

Vavada – najlepsze oferty i kody promocyjne dla nowych graczy!

Dodanie nieruchomości

Dane nieruchomości

Typy nieruchomości
Rodzaj oferty
Województwo
Powiat / miasto
Gmina / dzielnica
Ulica
Numer budynku
Numer lokalu
Liczba pokoi
Powierzchnia
Opis
Cena
Waluta

Dane kontaktowe

Nazwa firmy
* Imię
* Nazwisko
* E-mail
* Telefon
Wyrażam zgodę na przetwarzanie moich danych osobowych przez Polo Group Thomas Leach, ul. Garncarska 8/4, 31-115 Kraków, NIP: 6762284832 w celu kontaktu w sprawie oferty Leach & Lang Property Consultants.
Oświadczam, że zapoznałam/em się oraz akceptuję Politykę prywatności.
Wyrażam zgodę na otrzymywanie drogą elektroniczną informacji handlowych, w tym o treści marketingowej z obszaru obrotu nieruchomościami w rozumieniu ustawy z dnia 18 lipca 2002 r. o świadczeniu usług drogą elektroniczną