Skip to content

Powierzchnia biurowo- usługowa, Łęg

Numer oferty: 8013
Kraków
ul. Ciepłownicza
Cena:
8 280,00 PLN

Informacje szczegółowe

Rodzaj nieruchomości:
lokale na wynajem
Powierzchnia:
144 m2
Liczba pięter:
4
Pokoje:
4
Typ:
inny
Ogrzewanie:
miejskie
Ostatnia aktualizacja:
03.11.2025

Udogodnienia

Opis

Powierzchnia biurowo-usługowa na wynajem - ul. Ciepłownicza, Kraków

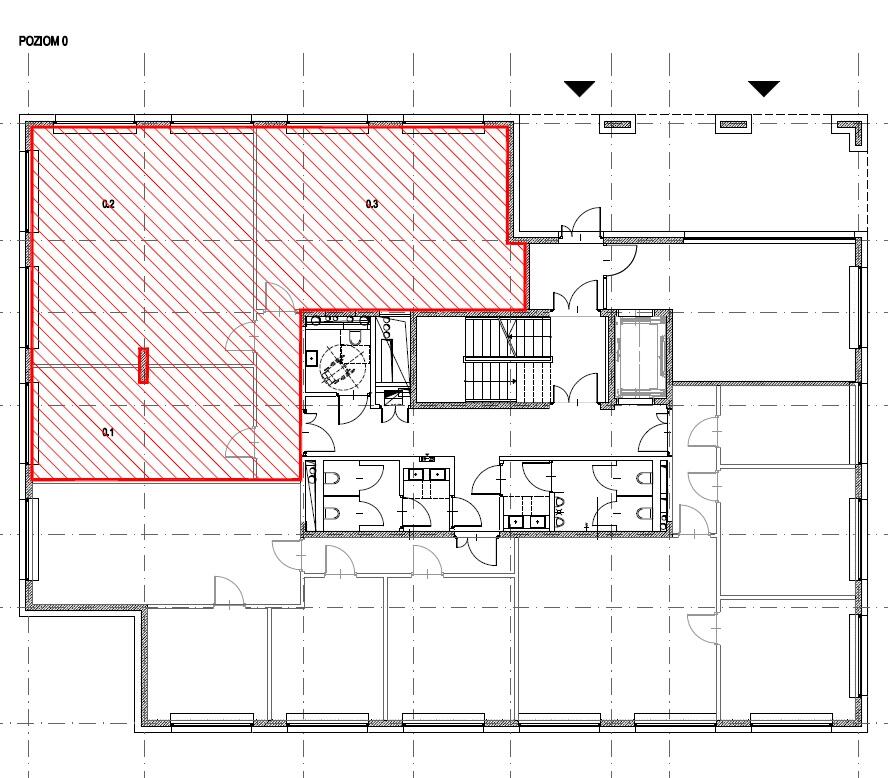
Do wynajęcia lokal biurowo-usługowy o powierzchni 143,76 m, zlokalizowany na parterze nowoczesnego budynku.
Lokal składa się z trzech niezależnych pomieszczeń biurowych oraz korytarza, a także zaplecza socjalnego i dostępu do łazienki w części wspólnej.
Wysokość pomieszczeń wynosi około 3,003,40 m, co zapewnia komfort i przestronność wnętrz.
Lokal posiada ogrzewanie miejskie, jest w pełni wykończony i gotowy do użytkowania.
Wyeksponowane, surowe sufity dodają wnętrzu nowoczesnego, loftowego charakteru, tworząc idealne warunki do prowadzenia działalności biurowej lub usługowej.

Budynek o nowoczesnej architekturze i przeznaczeniu biurowo-usługowym, położony na ogrodzonym i oświetlonym terenie. Obiekt jest objęty systemem monitoringu i ochrony fizycznej.
Dla najemców dostępne są miejsca postojowe przed budynkiem, co stanowi duży atut dla klientów i pracowników.
Nieruchomość znajduje się przy ulicy Ciepłowniczej.
Dobry dojazd zarówno samochodem, jak i komunikacją miejską - w odległości ok. 5 minut spacerem znajduje się przystanek autobusowy, który zapewnia szybkie połączenie z innymi częściami miasta.
Okolica rozwija się dynamicznie, łącząc funkcje biurowe, usługowe i magazynowe, co sprzyja prowadzeniu różnorodnej działalności gospodarczej.

Czynsz podstawowy: 57,50 zł netto/m
Opłaty eksploatacyjne: 9,50 zł/m
Media: płatne według indywidualnego zużycia
Dostępność lokalu: od listopada 2025 r.
Umowa najmu: preferowany okres 1 rok lub na czas nieokreślony z 3-miesięcznym okresem wypowiedzenia (inne warunki do uzgodnienia indywidualnie)

Niniejsze ogłoszenie jest wyłącznie informacją handlową i nie stanowi oferty w rozumieniu art. 66 Kodeksu Cywilnego.

Więcej podobnych ofert na stronie internetowej www.leachandlang.pl - zapraszamy!

Mapa

Skontaktuj się

* E-mail
* Telefon
Treść wiadomości
Wyrażam zgodę na przetwarzanie moich danych osobowych przez 1) Polo Group Thomas Leach (NIP: 6762284832), oraz 2) Leach and Management Katarzyna Balawejder sp.j. (NIP: 6762484502) z siedzibą przy ul. Garncarskiej 8/4, 31-115 Kraków, a także 3) Leach & Lang Beata Zalewska, ul. Giełdowa 4a/25, 01-211 Warszawa (NIP: 8231141526), wszystkie podmioty działające pod szyldem Leach & Lang Property Consultants w celu kontaktu w sprawie oferty.
Oświadczam, że zapoznałam/em się oraz akceptuję Politykę prywatności.
Wyrażam zgodę na otrzymywanie drogą elektroniczną informacji handlowych, w tym o treści marketingowej z obszaru obrotu nieruchomościami w rozumieniu ustawy z dnia 18 lipca 2002 r. o świadczeniu usług drogą elektroniczną

Dane kontaktowe

Vavada – najlepsze oferty i kody promocyjne dla nowych graczy!

Dodanie nieruchomości

Dane nieruchomości

Typy nieruchomości
Rodzaj oferty
Województwo
Powiat / miasto
Gmina / dzielnica
Ulica
Numer budynku
Numer lokalu
Liczba pokoi
Powierzchnia
Opis
Cena
Waluta

Dane kontaktowe

Nazwa firmy
* Imię
* Nazwisko
* E-mail
* Telefon
Wyrażam zgodę na przetwarzanie moich danych osobowych przez Polo Group Thomas Leach, ul. Garncarska 8/4, 31-115 Kraków, NIP: 6762284832 w celu kontaktu w sprawie oferty Leach & Lang Property Consultants.
Oświadczam, że zapoznałam/em się oraz akceptuję Politykę prywatności.
Wyrażam zgodę na otrzymywanie drogą elektroniczną informacji handlowych, w tym o treści marketingowej z obszaru obrotu nieruchomościami w rozumieniu ustawy z dnia 18 lipca 2002 r. o świadczeniu usług drogą elektroniczną